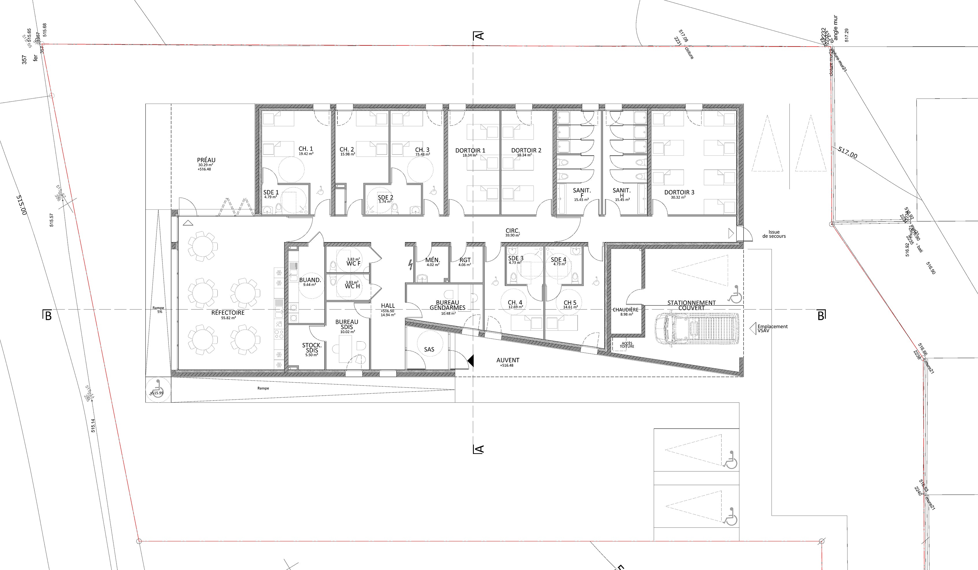
Poste avancé SDIS et gendarmerie

Maitrise d'oeuvre

Boomerang & Macadam (architecte) / DAM (stucture) / Artec64 (économiste) / CET (fluides thermique) / Cetrea (VRD)

Maitrise d'ouvrage

Communauté de communes des lacs et gorges du Verdon

Année

2018-2020

Localisation

Salles-sur-Verdon (83)

Type

Poste avancé SDIS et gendarmerie, casernement, hébergement

Surface

450 m²

Budget

800 000 € HT

Au bord du lac de Sainte-Croix, le poste avancé saisonnier du SDIS et de la Gendarmerie incarne une présence discrète mais essentielle. Conçu pour accueillir les équipes de secours et de sécurité durant la période estivale, le bâtiment s’inscrit dans le paysage comme un bloc minéral sobre et ancré, inspiré des teintes et des matières du Verdon.

Sa volumétrie compacte, creusée de loggias et de percées de lumière, conjugue efficacité fonctionnelle et douceur d’usage. Les façades en enduit à la chaux brun clair dialoguent avec la roche et les ombres portées du relief environnant, tandis que les pergolas en bois filtrent la lumière et prolongent les espaces vers l’extérieur.

À la fois outil opérationnel et fragment de paysage, ce bâtiment traduit une volonté d’architecture juste : silencieuse, contextuelle et profondément liée à la nature qu’elle protège.