20 Logements sociaux semi-collectifs

Maitrise d'oeuvre

Boomerang & Macadam (architecte, OPC) / DAM (structure) / CET (fluides-thermique) / Igetec (acoustique)

Maitrise d'ouvrage

Habitations Haute-Provence

Année

2023-2025

Localisation

Manosque (04)

Type

Construction de 20 logements sociaux semi-collectifs

Surface

1321 m²

Budget

2 200 000 € HT

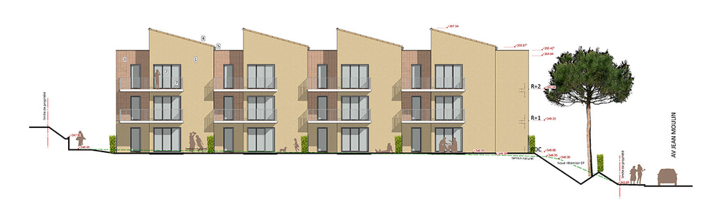
Situé avenue Jean Moulin, dans le quartier de la Colette à Manosque, le projet « Les Balcons du Castellet » s’inscrit dans la continuité du renouvellement urbain engagé par la ville. Sur l’ancien site du city-stade, il propose un habitat à échelle humaine, combinant qualité d’usage, sobriété architecturale et insertion paysagère.

Les deux bâtiments, orientés perpendiculairement à l’avenue, s’élèvent avec mesure et cohérence, sans effet de masse. Leur volumétrie rythmée par de légers redans et alternances de toitures crée une écriture plissée et dynamique, où la lumière joue avec les ombres et les reliefs. Chaque logement bénéficie d’une double orientation et de généreux espaces extérieurs : balcons profonds, terrasses ou jardins privatifs au rez-de-chaussée.

L’architecture privilégie la simplicité des volumes et la chaleur des matières : enduit minéral brun clair, parements en terre cuite rosée, bois naturel et ferronneries gris clair. Ces teintes douces, issues du vocabulaire provençal, favorisent l’intégration du projet dans son environnement résidentiel.

Les espaces extérieurs participent à la qualité d’ensemble : noues végétalisées, aire de jeux ombragée, alignements d’arbres méditerranéens et haies arbustives redonnent au site sa porosité et son caractère paysager. Avec 37 % de pleine terre, l’opération dépasse largement les exigences réglementaires et affirme une ambition environnementale concrète.

Le projet traduit une approche architecturale équilibrée : entre densité maîtrisée, confort d’usage et douceur urbaine, au service d’un habitat social durable et apaisé.